Projects
Researches
Works
Projects
Researches
Works
Mamdouh Hani
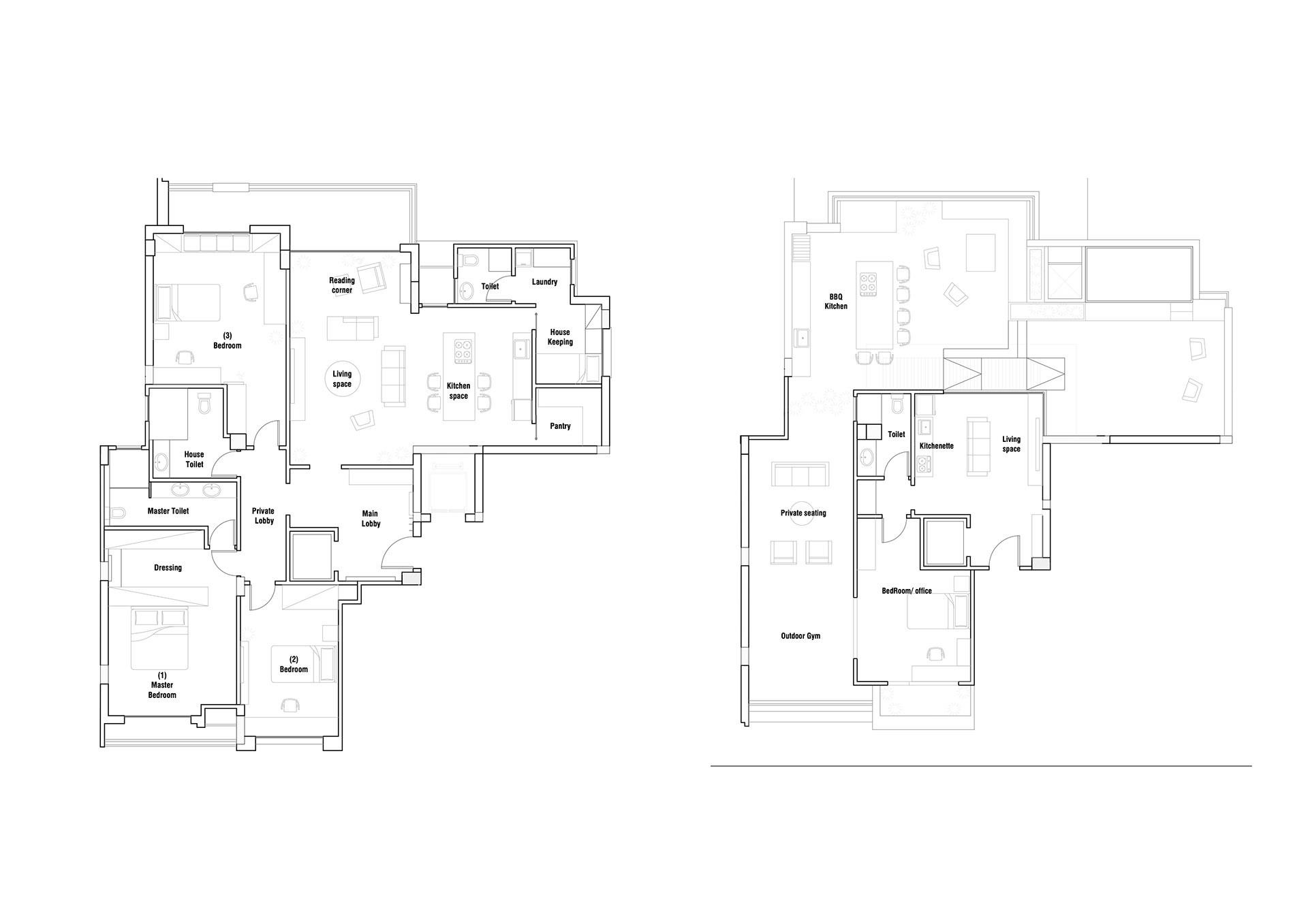
Shawwa Apartment
With Omar Ahmed (shots)
July, 2023
Residential
To a private client
You may also like
Hydepark Apartment
2021
Oraby Event Space
2021
Boho restaurant
2018
CookieVore Factory
2021
Maadi's Apartment
2025
DT- Stopmotion Factory
2021
Zest House
2018
Water Research Center
2021
Jannet Zayed Apartment
2023
Dahab AgriTouristic center
2020
↑
Back to Top