Projects
Researches
Works
Projects
Researches
Works
Mamdouh Hani
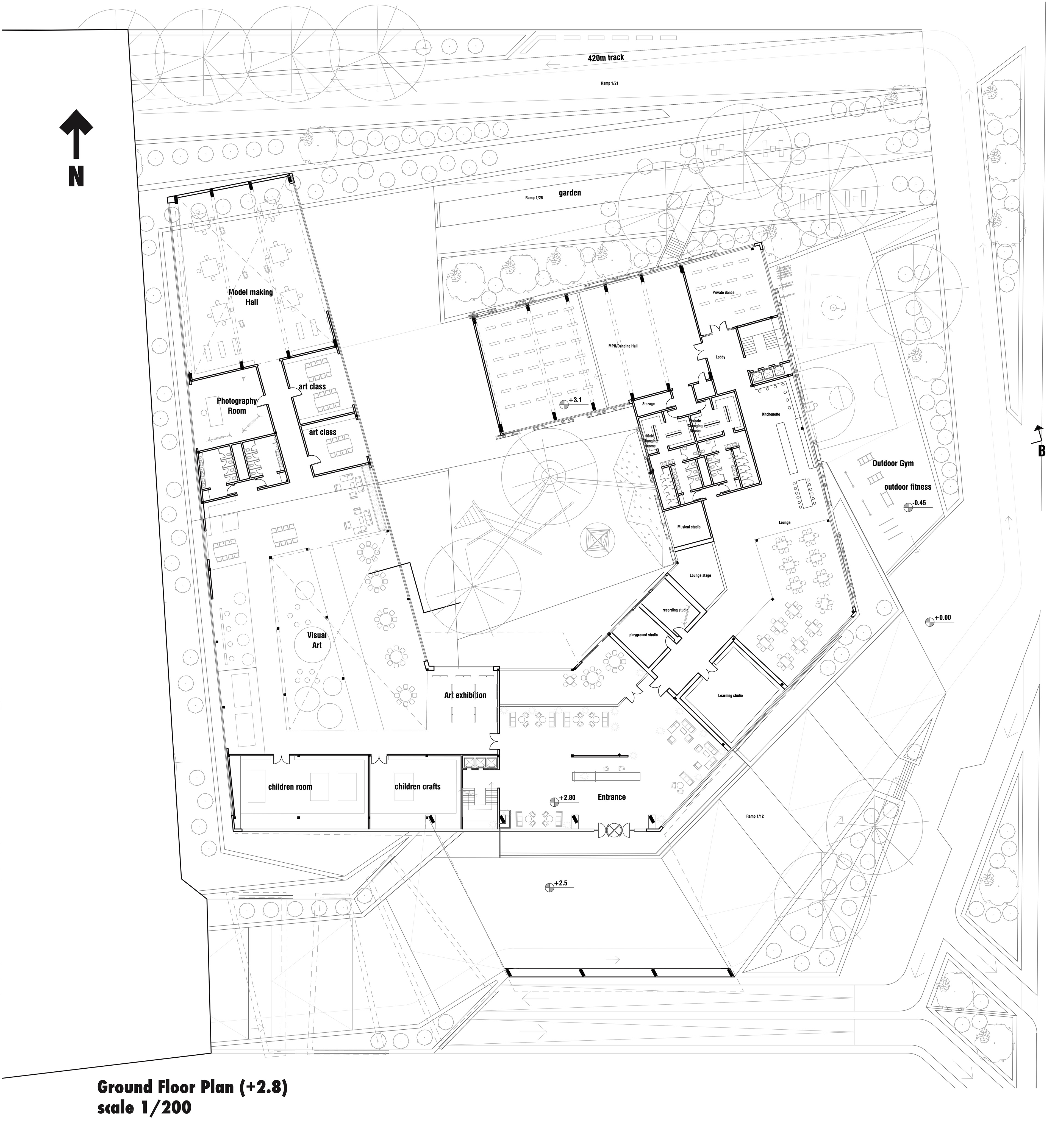
THE LAN
July, 2021
Architectural Project
Graduation Project
You may also like
Dahab AgriTouristic center
2020
Boho Office/Bed Room
2019
Boho restaurant
2018
Alex Innovation Lab
2024
Zest House
2018
Siwa vacation house
2025
Zest Eden
2020
X HOUSE
2023
BANHA Innovation Lab
2024
Garage Apartment
2024
↑
Back to Top