Projects
Researches
Works
Projects
Researches
Works
Mamdouh Hani
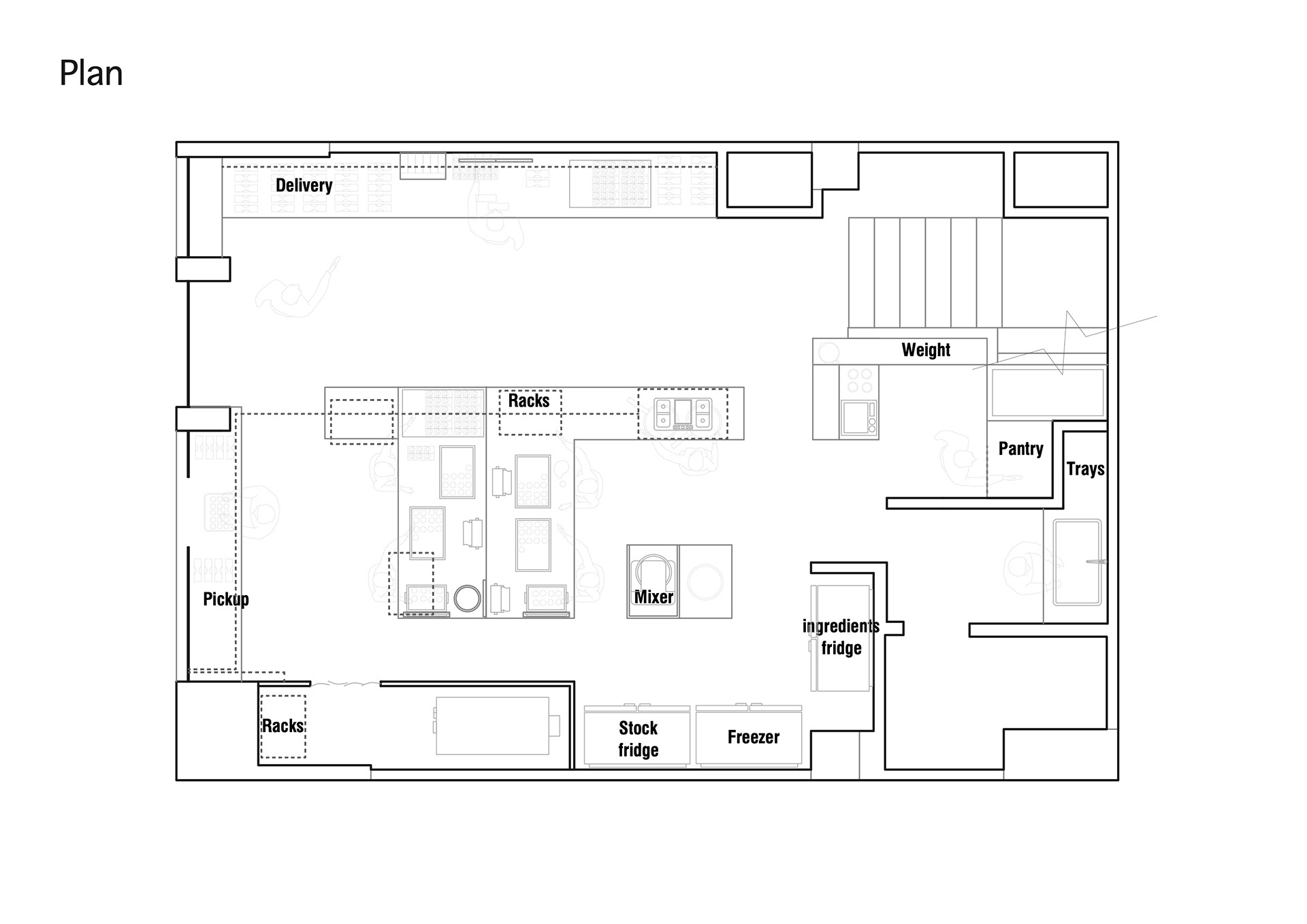
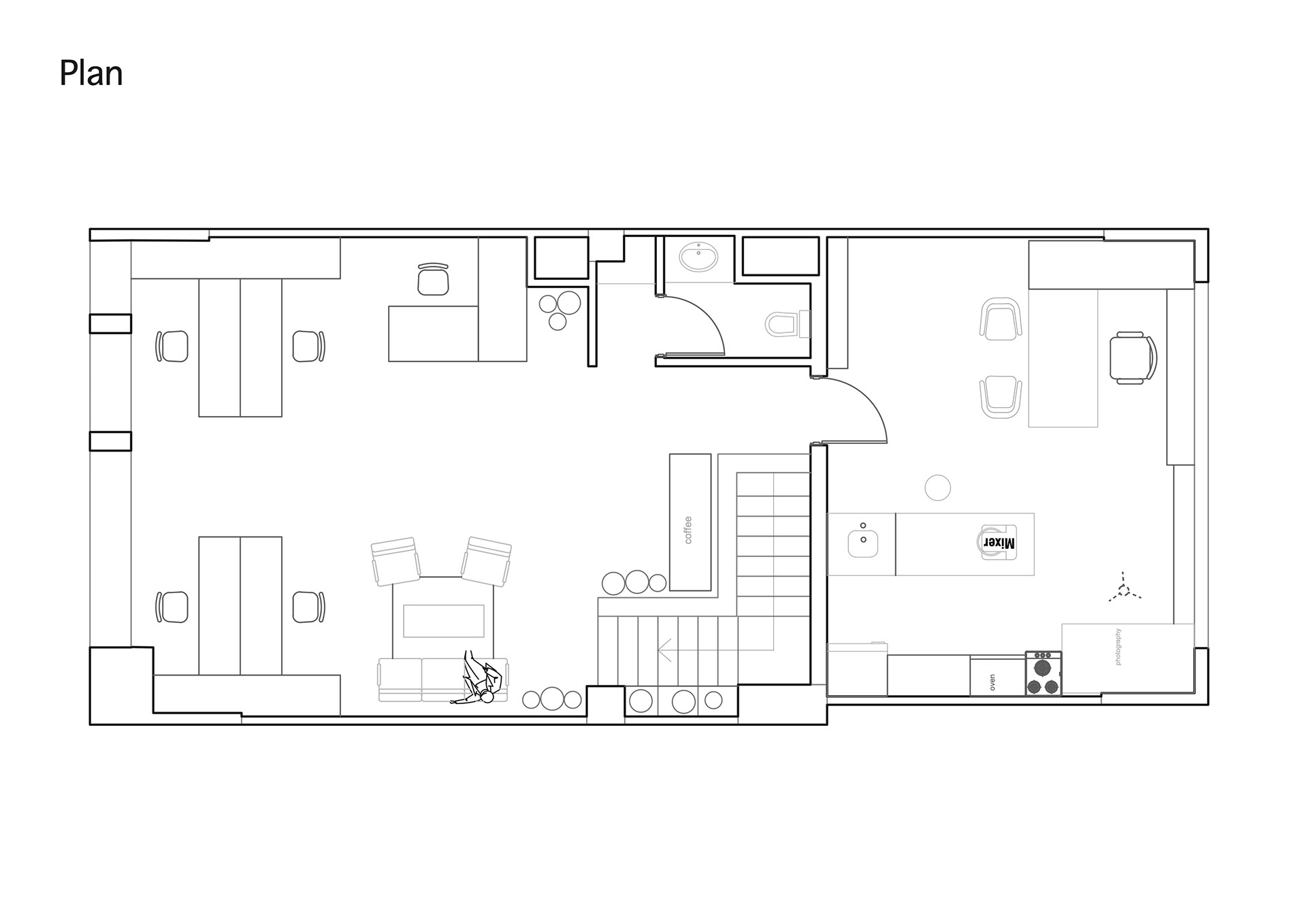
CookieVore Factory
O1 team : Abdullah khaled, Amr Maged, youssef Adel
February, 2021
O1 to CookieVore
You may also like
Garage Apartment
2024
Siwa vacation house
2025
DT- Stopmotion Factory
2021
Maadi's Apartment
2025
Shawwa Apartment
2023
Alex Innovation Lab
2024
Dahab AgriTouristic center
2020
Jannet Zayed Apartment
2023
Publicist
2021
Zest Eden
2020
↑
Back to Top